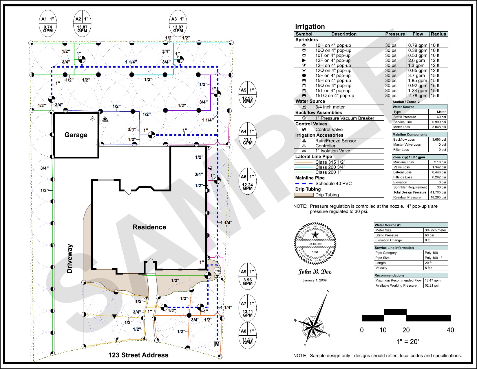
TCEQ Sample Plan